陈永杰不走常规路,后海招商玺豪宅感弱了

/粤进深 严明会

深圳豪宅,陆续传来入市消息。

就在近日,备受关注的深圳三大豪宅之一。

后海招商玺,临时展厅已开放,预计12月入市。

项目将首推124层的小高层,两个户型。

目前,户型图已经披露。

这个项目,建设用地面积14969.93㎡;

总建筑面积150843.93㎡,计容积率建筑面积111267.45㎡;

容积率7.43

规划住宅户数548户,地下停车位700个。

小区住宅建筑面积88251㎡。

主要有四栋住宅楼和一栋幼儿园。

四栋住宅:

1栋一单元24层,1栋二单元41层;

1栋三单元42层,1栋四单元46层。

整个小区的住宅楼呈“7”字形排布。

项目主打改善产品,建面约188-247㎡。

同时因位于后海,且入市时间接近。

也被与深圳湾澐玺、中信信悦湾一起。

看作是今年备受期待的豪宅。

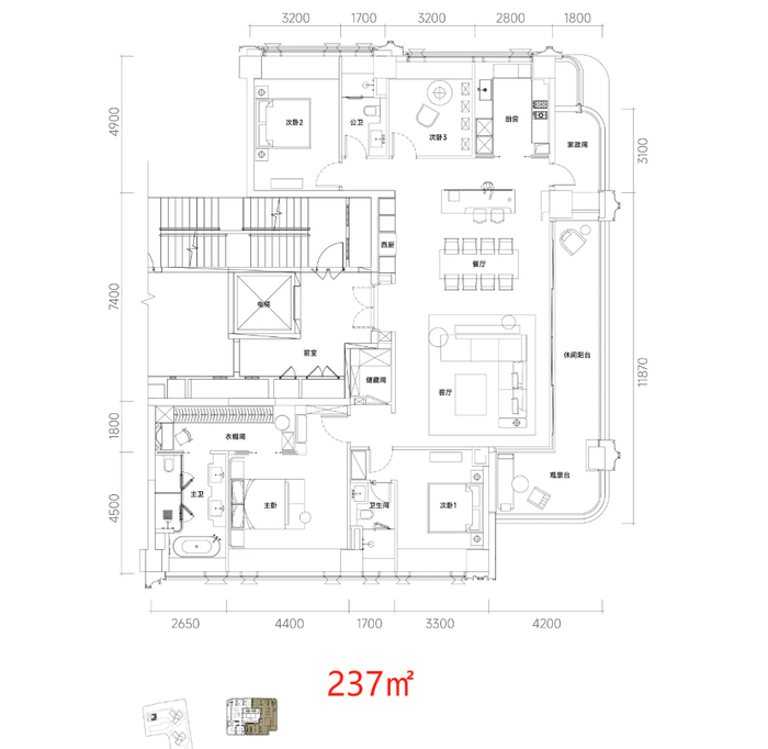
后海招商玺,目前已披露的1栋两个户型。

197237㎡户型,单梯入户;

均为4房设计,2个套房,3个卫生间。

具体来看,197㎡在西边,237㎡在东边。

户型图一出来,还是引起了比较大的讨论。

一方面,是后海招商玺作为年底入市豪宅,本身就受到关注。

另一个原因,项目户型确实也有让人感到意外的地方。

布局朝向上,两个户型没有按照以往的朝南设计。

而是将阳台主体朝向了东、西。

并将4个卧室放在了南北两边。

而客餐厅置于中间。

因此整体看,虽然户型做的还算方正。

但跟传统豪宅普遍主张的南北通透,要弱了不少。

怎么说呢,就是没有那种豪宅的惊喜感。

感觉浪费了它的大阳台,有点可惜。

要知道,其237㎡户型的阳台达到11.87米;

197㎡户型的阳台也足足有8米。

另外,户型还有两个问题,受讨论较多。

一个,两个户型,入户门进来并没有过渡玄关。

电梯出来,打开入户门就是客厅。

有点过于直接。

还好两个户型是一梯一户。

不然隐私就是一个问题。

另一个,两个户型的厨房,其实都不算大。

不过,这两个户型仅限在1栋。

其他的楼栋,在朝向、排布上都跟1栋有所不同。

所以其余的户型,还要等后续披露才知道。

其实,关于招商蛇口的这个项目。

关注度一直挺高。

不仅是因为其位置,也因为项目较为曲折的身世。

其原为恒大旗下旧改项目。

早在2016年,恒大签约湾厦村旧改。

整个城更项目占地面积24.95万平方米。

计划要建131万平方米的“前海封面综合体”。

而饼干厂作为一期项目,规划359层超高层住宅写字楼学校,容积率8.9

只不过,项目因过高的容积率、保障房比例,以及周边居民的反对陷入僵局。

而后恒大出险,项目更彻底搁浅。

2022年,招商蛇口联手平安资管成立合资公司,正式接手饼干厂城市更新项目。

随后规划也有所调整,其中,容积率由8.9调整至6.5

与此同时,去掉了人才住房和保障性住房。项目得以推进。

目前,后海玺家园开发主体为深圳招商蛇口华湾地产开发有限公司。

该公司成立于202212月。董事长为陈永杰,总经理为黄淼兴。

去年12月,招商蛇口举行了饼干厂城市更新单元美好焕新启动仪式。

当时,招商蛇口相关负责人介绍了项目的规划理念与美好愿景:

将充分尊重历史脉络,保留并传承原联合饼干厂的文化记忆;

同时融入现代设计理念,打造具有时代特色的公共空间;

从而打造为招商蛇口旗下绿色人居发展道路上的又一标杆。

但毕竟因为是旧改项目。

后海招商玺有一栋据说是回迁房。

那就是1栋四单元,一层七户。

这栋回迁房是没有跟另外三栋商品房分隔开的。

也就是说,以后的小区园林这些空间都是公用。

不过,整个小区其实不大,园林这些空间也相对有限了。

除此之外,项目剩余的两栋商品住宅:

1栋二、三单元则均为是一层三户设计。

可以预见,后海招商玺入市,将面临一定竞争压力。

片区的两个豪宅中信信悦湾、深圳湾澐玺,来势汹汹。

这两个项目,要更靠近海景。

户型面积更大,定位上也更豪。

当然,价格也更贵。

目前,深圳湾澐玺,已经开放展厅,不久样板间也将开放。

据悉同样将于12月推向市场。

免责声明:

1、本网站所展示的内容均转载自网络其他平台,主要用于个人学习、研究或者信息传播的目的;所提供的信息仅供参考,并不意味着本站赞同其观点或其内容的真实性已得到证实;阅读者务请自行核实信息的真实性,风险自负。